Heyday Skincare

CLIENT: HEYDAY SKINCARE
DETAILS: INTERIOR DESIGN, RETAIL DESIGN STANDARDS, BRAND STRATEGY, VISUAL MERCHANDISING

HUXHUX Design Inc. partnered with Heyday Skincare to reimagine the client experience and translate the brand’s philosophy of personalized, accessible skincare into a calm, contemporary spatial identity. As Heyday shifted from a New York–based studio model to an ambitious national franchise rollout, we were tasked with redefining their environments and establishing new interior standards, signage, retail systems, and customer programming for all future locations.

With franchising comes tighter budgets, so we approached the project with a design-driven, cost-conscious mindset. Instead of limiting the creative process, this challenge allowed us to distill the brand into a cleaner, more scalable expression. We mapped the guest journey from street to treatment room, shaping intuitive transitions: a bright, welcoming retail zone for pre- and post-treatment engagement, a transformative threshold cladded with mirror for a brief reset pause, and private treatment areas defined by soft drapery, warm light, and a restorative material palette.


Heyday skincare store exterior with glass windows showcasing shelves of products and a promotional poster.
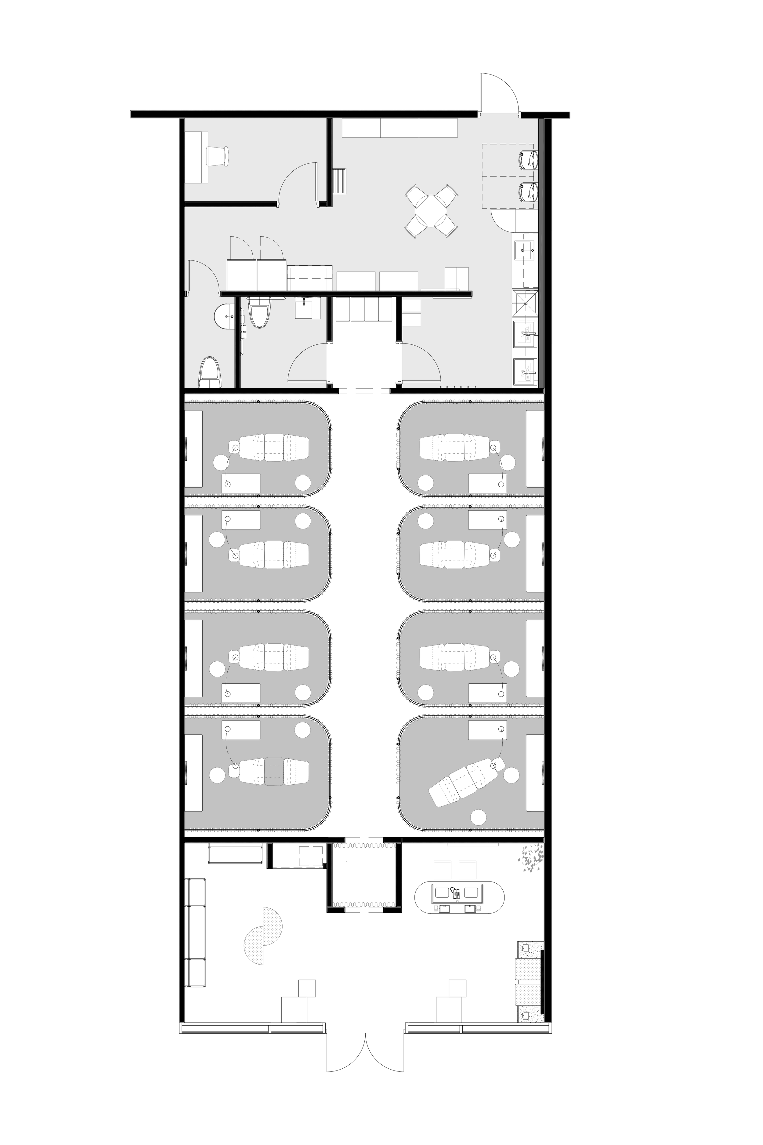
Architectural floor plan layout for a healthcare facility, showing a series of patient rooms, hallways, a reception area, and an office space.
Reception area of a spa with "HEYDAY" signage, featuring a modern front desk, pendant lighting, indoor plant, and wall art.
Modern skincare spa interior with reception desk, decorative plants, promotional poster, and product display shelves near large windows.
A minimalist retail space with shelves displaying various white bottles and containers, likely skincare or beauty products. The shelves have a few promotional images, and a circular mirror is mounted on one shelf. Two brown upholstered seats are in the center of the room. The floor is a smooth, light gray finish.
Cosmetic store interior with shelves displaying various skincare products in white packaging and promotional posters.
Assorted tile and flooring samples in various textures and colors, including wood, cork, terrazzo, and ceramic, arranged in a grid pattern.
Interior of a modern skincare store with a reception desk, product display shelves, and a wall sign reading 'HEYDAY'. The setting is stylish with a natural color palette, featuring a plant, seating area, and promotional images on the walls.
A hallway with brown curtains and the words 'HEYDAY' and 'Hey, you look gorgeous!' on the walls.
Dimly lit hallway with brown curtains and lights suspended from the ceiling
Modern hallway with pink and brown tones, featuring vertical slats on the walls, reflective floor, and decorative lighting on the ceiling.
Assorted tile and material samples on a wooden surface, including ceramic tiles, fabric swatches, and wood veneer samples in various colors and textures.

Custom fixtures, thoughtful lighting, and efficient millwork bring clarity and ease to the experience while reinforcing Heyday’s commitment to holistic care. Every element was designed with rollout in mind, creating a system that is standardized, scalable, and supported by a coordinated national vendor network.