Brooklyn Clay Industries

CLIENT: BROOKLYN CLAY INDUSTRIES
DETAILS: INTERIOR DESIGN

HUXHUX Design Inc. partnered with Brooklyn Clay Industries to design a major expansion for their pottery, ceramic, and sculpture studio in the Brooklyn Navy Yard. With a mission to encourage people of all ages to develop their full creative potential through ceramic arts, Brooklyn Clay Industries inspires us by their expansion of business and commitment to building community.

“We’re really grateful for this generous grant from HUXHUX Design. Thank you HUXHUX Design Inc. for all your creative work, patience and dedication to this project and for helping us continue our mission to create a safe pottery/ceramic space for all, at the historic Brooklyn Navy Yard. With this expansion we will be able to more adequately physical distance while learning and creating at Brooklyn Clay Industries.” - Reuben, BCI

Black-Owned Business Interior Design Grant announcement with logo on gradient background.
Architectural layout showing floor plans and color schemes for Brooklyn Clay Industries by HUXHUX Design, featuring colored areas marked with specific Benjamin Moore paint colors: Lemon, Sunburst, Turquoise Powder, Citrus Orange.
A shelf filled with various stacked plaster molds, some secured with straps, used for ceramic or pottery making.
Stack of architectural blueprints on a table under window light, with pottery on shelves in the background.
Architectural drawing of entry and reception elevations for Brooklyn Clay Industries, detailing a reception desk, adjustable shelving, drywall, beams, signage, artwork, a planter, lounge chairs, lockers, and closet. Includes dimensions and annotations for design elements, with a scale of 1/4” = 1’-0” dated 08.04.2020.
Isometric architectural floor plans with furniture layout and walls, featuring chairs and tables, on a white background.
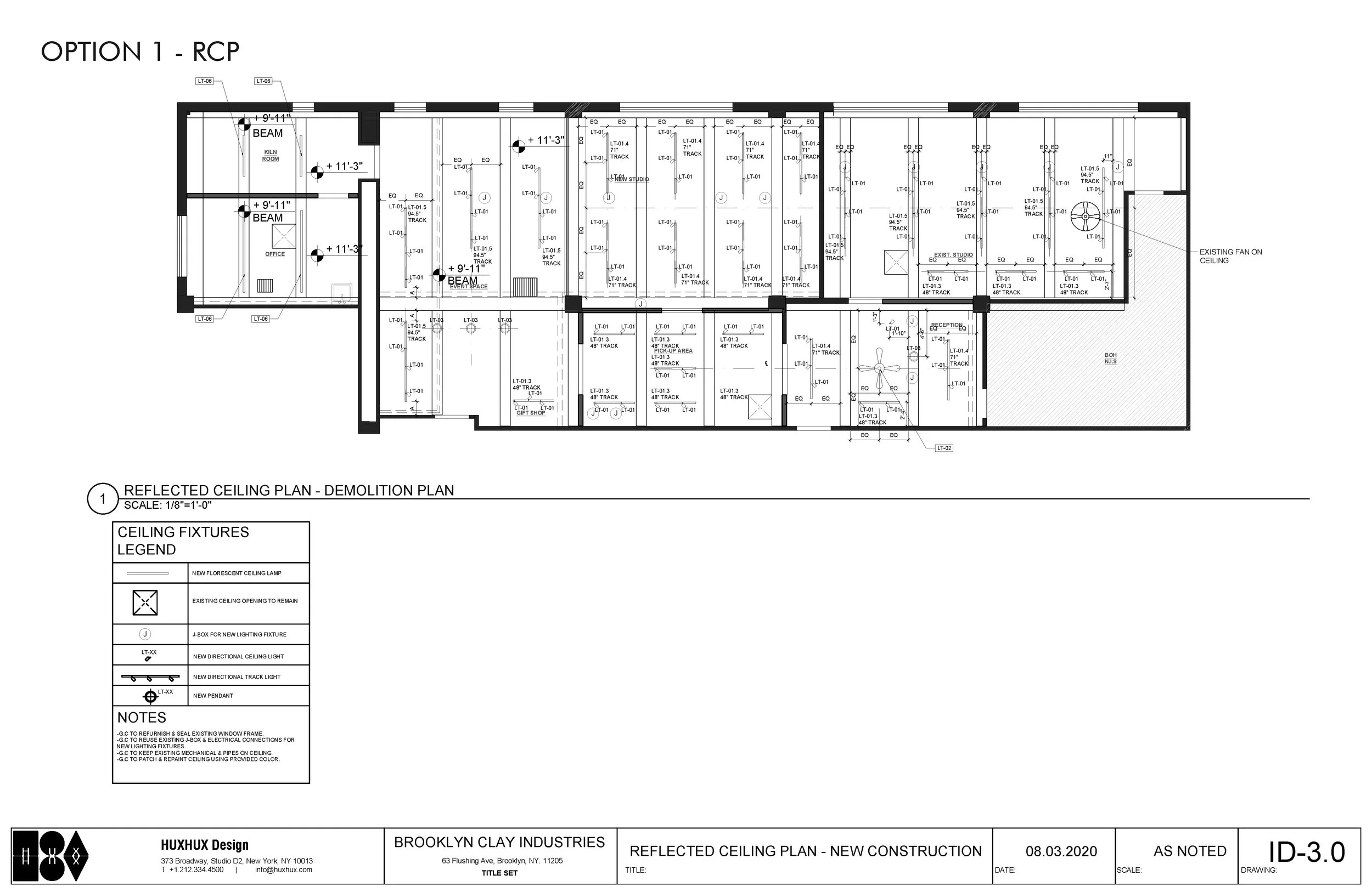
Architectural reflected ceiling plan labeled 'Option 1 - RCP' for Brooklyn Clay Industries, showing layout of ceiling fixtures, beams, and ventilation. Includes legend for ceiling fixtures like fluorescent lamps, ceiling fans, and directional lights. Dated August 3, 2020, by HUXHUX Design.
Architectural floor plan labeled "Option 2 - Plan" showing layout of a commercial space with rooms for main room, office, event space, gift shop, and various workstations. Includes blueprint markings and measurements. Designed by HUXHUX Design for Brooklyn Clay Industries.
Reflected ceiling plan and demolition plan for Brooklyn Clay Industries, showing layout of ceiling fixtures, beams, rooms, and existing fans. Includes a legend with symbols for various lighting fixtures and notes on construction details, scale is 1/8"=1'-0".
Interior design blueprint with furniture, chairs, and shelving layout.
Design plan for an existing studio with diagrams and images of shelving and storage solutions, including wire shelving, adjustable wall shelves, and closed cabinets. Features include painted drywall and beams, paint existing pipe, and labeled specifications. HUXHUX Design logo and contact information present.